Urban Hearth - Cambridge, MA

Project overview

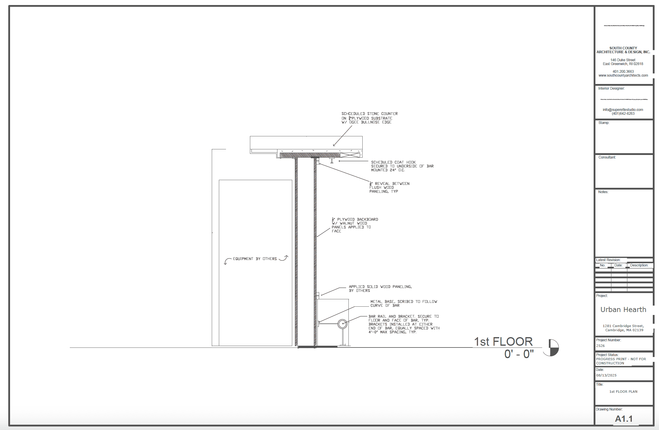
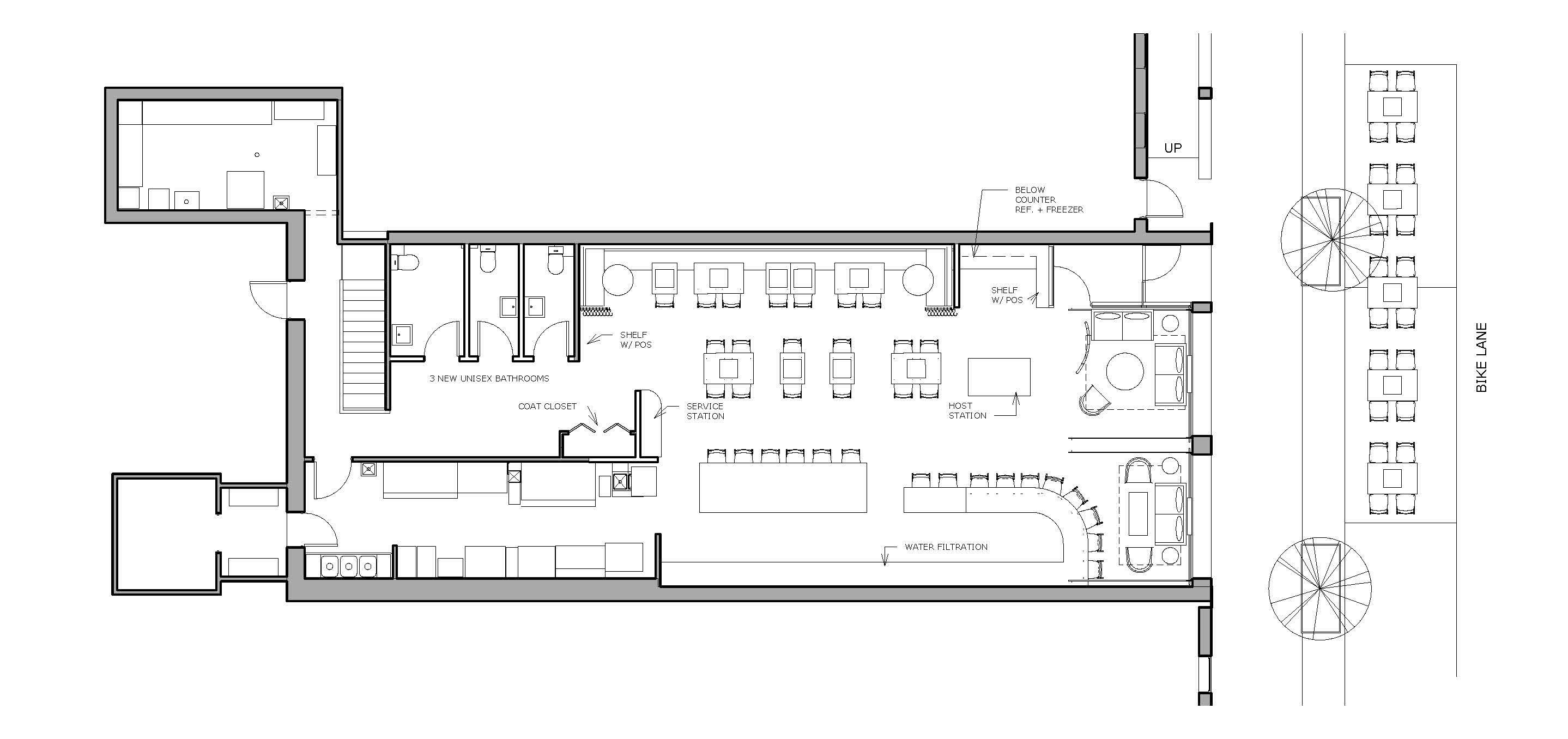
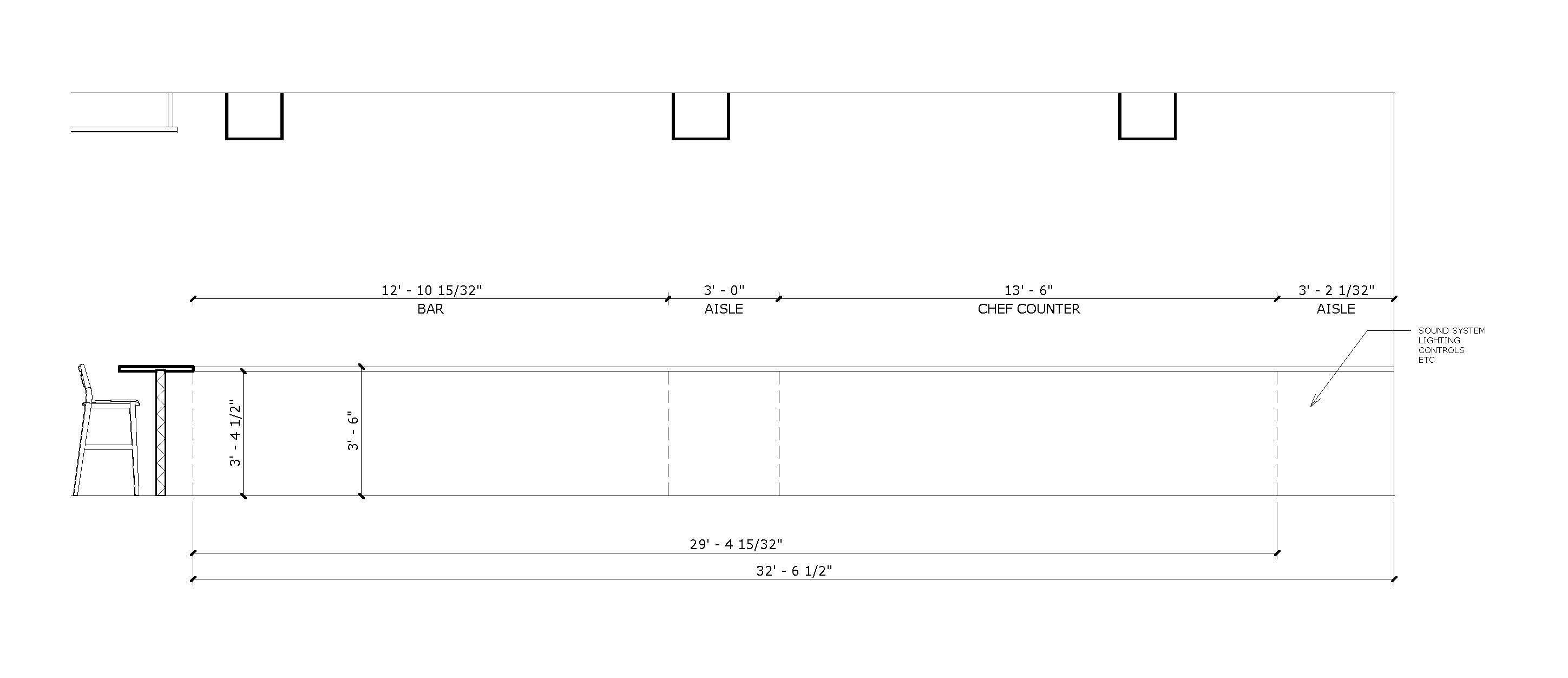
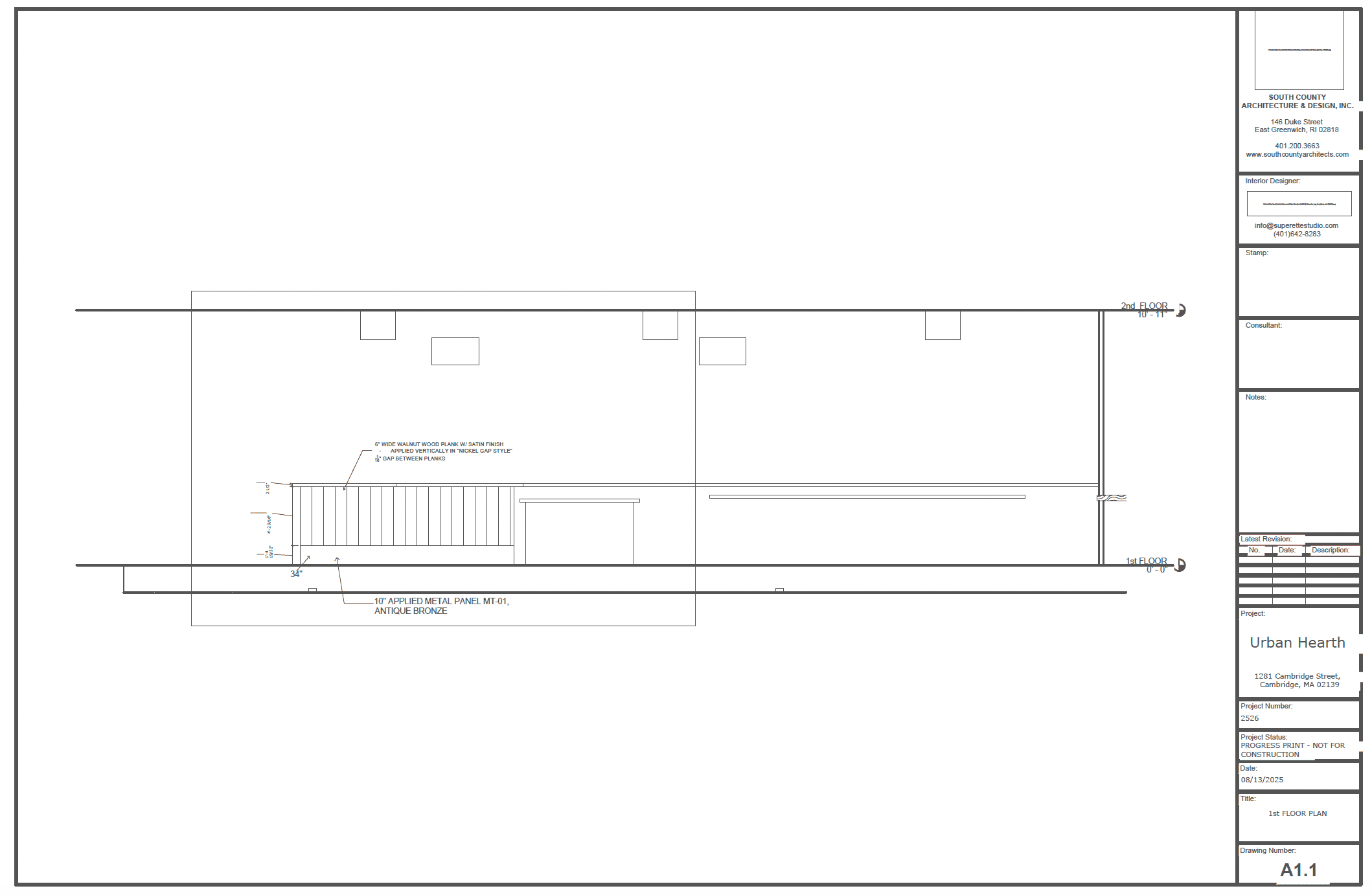
While working with Superette Studio, I contributed to the redesign of Urban Hearth, a neighborhood restaurant in Cambridge, MA. My work included creating concept boards, refining spatial layouts and plans, and developing detailed construction drawings.

The design concept centered on offering a fine dining experience that feels authentic, personal, and approachable—where guests can enjoy Michelin-caliber cuisine without intimidation. Guided by the brand idea “Intimate Dining, Shared Humanity,” the project celebrates connection and presence over spectacle.

Our mission was to craft an environment that feels expressive and grounded in place—nourishing guests through story, emotion, and belonging. The vision redefines fine dining in Boston as an inclusive, story-driven experience rooted in seasonality, sustainability, and the joy of slowing down.